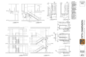
construction-documents-large-sheet